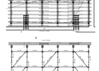
Cimbras
La función principal de las cimbras es proporcionar un soporte temporal a la estructura mientras se construyen los elementos permanentes, como paredes, techos y vigas.

La función principal de las cimbras es proporcionar un soporte temporal a la estructura mientras se construyen los elementos permanentes, como paredes, techos y vigas.
Los apeos se realizan en obras de gran envergadura para retirar las partes de la estructura que ya no son necesarias o para preparar el terreno para la siguiente fase de la construcción.
Los apeos pueden requerir la utilización de maquinaria pesada, como grúas, martillos neumáticos y demolicionadores.
El trabajo de apeo también puede requerir la colaboración de trabajadores especializados, como ingenieros estructurales y expertos en seguridad.
Es importante destacar que los apeos en obras de gran envergadura requieren una planificación y ejecución cuidadosa para garantizar la seguridad de los trabajadores y de la población local. Es necesario seguir estrictamente las normas y regulaciones de seguridad para garantizar un entorno seguro y sin riesgos durante el proceso.
Además, es importante llevar a cabo inspecciones regulares para detectar cualquier riesgo potencial y abordarlo de manera efectiva antes de que cause daños.